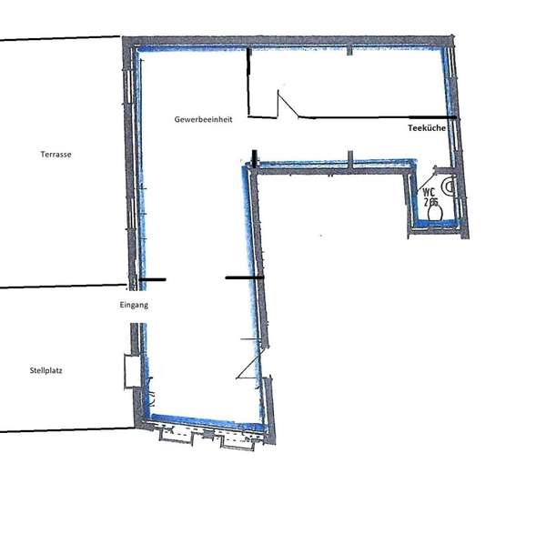
72764 Reutlingen (68 qm)

Charmante & vielseitige Gewerbeeinheit in Reutlinger Zentrum mit Stellplatz & Terrasse

...weiter zur Objektbeschreibung

Vertragsform: Miete
Verkaufsfläche: 68qm
Nutzungsart: Einzelhandel
870,00  pro Monat (Nettomiete zzgl. NK)
nach Vereinbarung

Ladenlokal in Reutlingen mieten

Adresse, Lage:

72764 Reutlingen (68 qm)

Objektbeschreibung:

Hilfreiche Linkempfehlungen:

Vertragsform

Vertragsform:
  • Miete

Adresse der Immobilie, Fläche

Bundesland:
  • Baden-Württemberg
PLZ:
  • 72764
Ort / Stadt:
  • Reutlingen
Straße / Hausnummer:

Angebotene Flächen, Größen

Gesamtfläche:
68qm
Verkaufsfläche:
68qm

Aktuelle Nutzung

Nutzungsart:
  • Einzelhandel

Zeitraum Listung

Listungsbeginn:
24.05.2025

Laden frei? Welche Mieter passen zu Ihrem Objekt?

Zuletzt gesehen:

Die folgenden Produkte haben Sie zuletzt aufgerufen.