1037-24HVEIGR8CB8

47057 Duisburg, Oststr. 136 (484 qm)

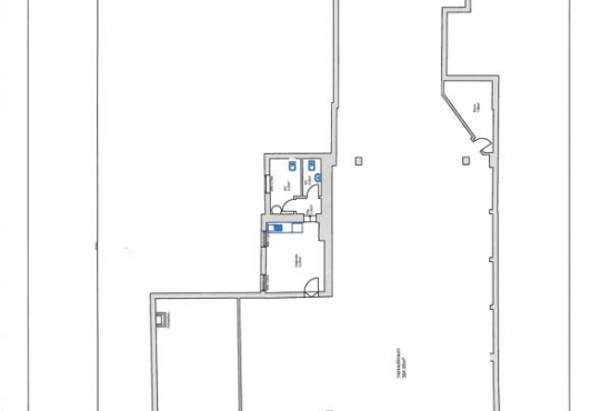
Ladenlokal Oststr. 136, 47057 Duisburg

Die Hauptfläche beträgt 460 qm, zuzüglich Nebenflächen für Sozialräume und Toiletten ca. 24 qm. Die Frontbreite beträgt 7,17m. ...weiter zur Objektbeschreibung

Vertragsform: Miete, Kauf
Verkaufsfläche: 484qm
Nutzungsart: Nutzung nach Absprache

Mit Google-Maps zum angebotenen Laden navigieren  Mit Google-Maps zum angebotenen Laden navigieren!

Kontakt zum Anbieter (bitte hier klicken)

[Preis auf Anfrage]
nach Vereinbarung

Ladenlokal in Duisburg mieten, kaufen

Adresse, Lage:

47057 Duisburg, Oststr. 136 (484 qm)

Objektbeschreibung:

Die Hauptfläche beträgt 460 qm, zuzüglich Nebenflächen für Sozialräume und Toiletten ca. 24 qm. Die Frontbreite beträgt 7,17m.

Hilfreiche Linkempfehlungen:

Vertragsform

Vertragsform:
  • Miete, Kauf

Adresse der Immobilie, Fläche

Bundesland:
  • Nordrhein-Westfalen
PLZ:
  • 47057
Ort / Stadt:
  • Duisburg
Straße / Hausnummer:
Oststr. 136

Angebotene Flächen, Größen

Gesamtfläche:
484qm
Verkaufsfläche:
484qm

Aktuelle Nutzung

Nutzungsart:
  • Nutzung nach Absprache

Zeitraum Listung

Listungsbeginn:
24.10.2025

Laden frei? Welche Mieter passen zu Ihrem Objekt?

Zuletzt gesehen:

Die folgenden Produkte haben Sie zuletzt aufgerufen.