45478 Mülheim an der Ruhr (294 qm)

Erstbezug im Wohnquartier "Speldorfer Karree" | vielfältige Nutzung möglich | 294 m²

...weiter zur Objektbeschreibung

Vertragsform: Miete
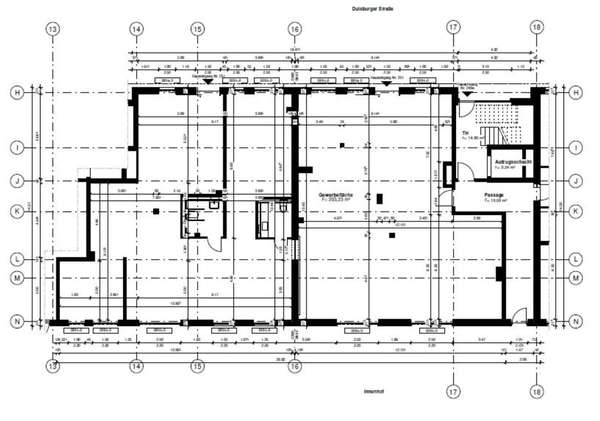
Verkaufsfläche: 294qm
Nutzungsart: Einzelhandel

Mit Google-Maps zum angebotenen Laden navigieren  Mit Google-Maps zum angebotenen Laden navigieren!

Kontakt zum Anbieter (bitte hier klicken)

5.880,00  pro Monat (Nettomiete zzgl. NK)
nach Vereinbarung

Ladenlokal in Mülheim an der Ruhr mieten

Adresse, Lage:

45478 Mülheim an der Ruhr (294 qm)

Objektbeschreibung:

Hilfreiche Linkempfehlungen:

Vertragsform

Vertragsform:
  • Miete

Adresse der Immobilie, Fläche

Bundesland:
  • Nordrhein-Westfalen
PLZ:
  • 45478
Ort / Stadt:
  • Mülheim an der Ruhr
Straße / Hausnummer:

Angebotene Flächen, Größen

Gesamtfläche:
294qm
Verkaufsfläche:
294qm

Aktuelle Nutzung

Nutzungsart:
  • Einzelhandel

Zeitraum Listung

Listungsbeginn:
31.05.2025

Laden frei? Welche Mieter passen zu Ihrem Objekt?

Zuletzt gesehen:

Die folgenden Produkte haben Sie zuletzt aufgerufen.