25524 Steinburg (Kreis), Feldschmiede 75 (286 qm)

Einzelhandelgeschäft in zentraler Lage / 286m² Gesamtfläche / auch zum Verkauf

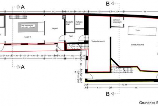
...weiter zur Objektbeschreibung

Vertragsform: Miete
Verkaufsfläche: 286qm
Nutzungsart: Einzelhandel

Mit Google-Maps zum angebotenen Laden navigieren  Mit Google-Maps zum angebotenen Laden navigieren!

Kontakt zum Anbieter (bitte hier klicken)

2.200,00  pro Monat (Nettomiete zzgl. NK)
nach Vereinbarung

Ladenlokal in Steinburg (Kreis) mieten

Adresse, Lage:

25524 Steinburg (Kreis), Feldschmiede 75 (286 qm)

Objektbeschreibung:

Vertragsform

Vertragsform:
  • Miete

Adresse der Immobilie, Fläche

Bundesland:
  • Schleswig-Holstein
PLZ:
  • 25524
Ort / Stadt:
  • Steinburg (Kreis)
Straße / Hausnummer:
Feldschmiede 75

Angebotene Flächen, Größen

Gesamtfläche:
286qm
Verkaufsfläche:
286qm

Aktuelle Nutzung

Nutzungsart:
  • Einzelhandel

Zeitraum Listung

Listungsbeginn:
24.05.2025

Laden frei? Welche Mieter passen zu Ihrem Objekt?

Zuletzt gesehen:

Die folgenden Produkte haben Sie zuletzt aufgerufen.